On the former site of Mayfair Lanes in Saanich, a three-building, 554-rental unit project with a massive Superstore has been approved.
In the Saanich council meeting on Tuesday, October 28th, the project was given its third and final reading before being greenlit.
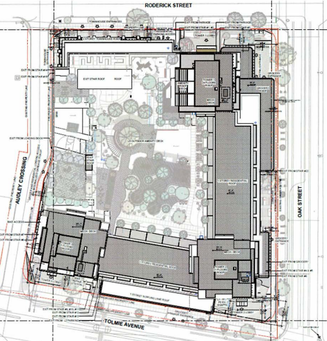
Two of the towers in this massive Tolmie Road project will be 21-storeys while one will be 24-storeys—all units in these buildings will be rental units.
Of these rental units, 118 will be studio units, 259 will be one-bedrooms, 120 will be two-bedrooms and 57 will be three-bedrooms.
There will be a total of 942 parking stalls—391 will be for commercial use while 551 will be made available to residents of the building. There will be room for over 580 bikes to be stored securely as well.
A new Superstore location will take up most of the ground floor and a treed courtyard with green space is meant to be built atop it.

The site on which this project will be built is owned by Loblaws, the group who owns Superstore, Shoppers Drug Mart and several other chains.
Loblaws purchased the land and shut down Mayfair Lanes in 2006, and the site has been vacant with fences up around it ever since.
The cost of this construction project is estimated at being around $300-million.
Construction is expected to begin in late 2025, and the entire project will be finished over the course of 48 months, according to the Vancouver-based developer, Townline.










